Works【介護浴室タイプ】フリーユニットバス1950

介護浴室タイプ

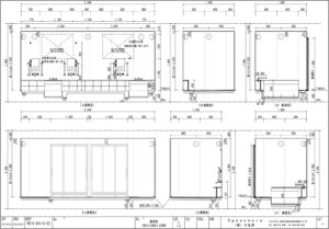
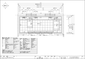
Outline概要

介護施設の木造2階で浴室設置を検討するにあたり小笠原のユニットバスを採用いただきました。1階にも同じタイプの浴室を設置。

施設様側より、浴室の入口から浴槽、洗い場の仕様など利用者の方が介助なしで使用しやすいレイアウトにこだわった浴室のご要望をいただきましたので、施設様と入念なお打ち合わせをさせていただき、洗い場カウンター形状にもこだわった浴室を対応させていただき、施設様側にも喜んでいただきました。

Details基本情報

サイズ
1900㎜×5000㎜×高さ2200㎜
主な仕様
天井:化粧鋼板パネル
壁:化粧鋼板パネル
床:300角タイル
ドア:3枚引き戸(アルミ枠)
浴槽:FRP浴槽
水栓:サーモスタット付きシャワーバス水栓/2ハンドルバス水栓(特注)

その他の施工事例