Works【機械浴室タイプ】酒井医療(株)カトレア2440・施工事例・使い勝手の良い浴室

機械浴室タイプ

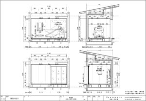
Outline概要

使い勝手の良い浴室をテーマに、機械浴槽を導入をしました。設計図にデッドスペースが少ない提案をさせていただきました。

小笠原ならお客様のご要望やイメージをカタチにできます。浴槽や壁、床、バス空間内の細かいパーツまで、しっかりお打ち合わせをさせていただきカスタマイズします。数多くの企画施工を行ってきたからこそデザイン性にも自信があります。まずはご相談ください。

Details基本情報

サイズ
2450㎜×4000㎜×高さ2200㎜
主な仕様
天井:化粧鋼板パネル(スタイロフォーム貼り)
壁:化粧鋼板パネル(スタイロフォーム貼り)
床:シート貼り
ドア:3枚引き戸(アルミ枠)
水栓:サーモスタット付きスイッチシャワー水栓
浴槽:機械浴槽(酒井医療株式会社・カトレア)

その他の施工事例