Works【ホテルシャワータイプ】フリーユニットバス0814・施工事例・インバウンド仕様

ホテル・シャワータイプ

Outline概要

オフィスビルからホテルへの用途変更を機にお問合せをいただきました。

白と黒のコントラストで外国籍の方の利用を想定したレインシャワー仕様のシャワールームに。壁はホワイトのタイル、水栓、アクセサリー、ドア枠はブラック仕様でシックでシンプルなデザインに仕上げています。

小笠原ならお客様のご要望やイメージをカタチにできます。浴槽や壁、床、バス空間内の細かいパーツまで、しっかりお打ち合わせをさせていただきカスタマイズします。数多くの企画施工を行ってきたからこそデザイン性にも自信があります。まずはご相談ください。

Details基本情報

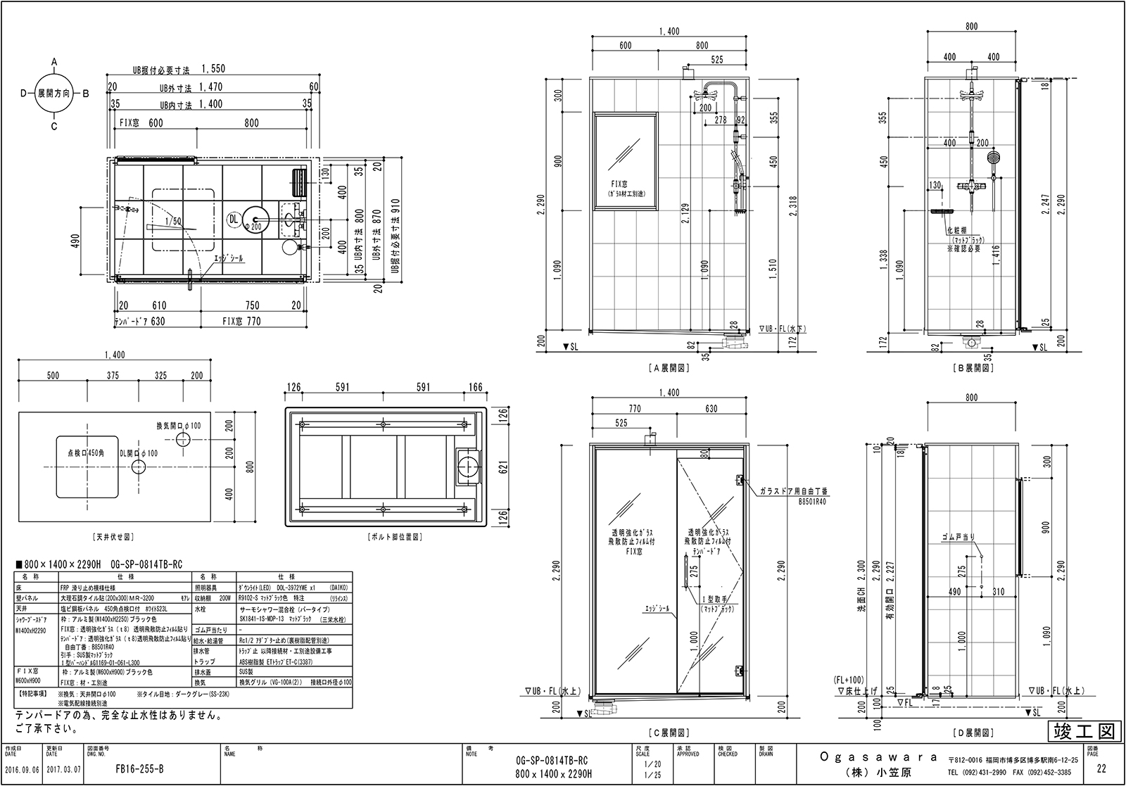
サイズ
800㎜× 1400㎜×高さ2290㎜
主な仕様
天井:化粧鋼板パネル
壁:200×300角タイル
床:FRP滑り止め模様仕様
ドア:テンパードア(アルミ枠)
FIX:アルミ枠
水栓:サーモスタット付きシャワー混合栓

その他の施工事例