Works【高級タイプ(戸建・マンション用)】フリーユニットバス1948・施工事例・高級感がある浴室

戸建て・マンションタイプ

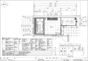
Outline概要

白を基調としたユニットバスをご希望されました。

シャワールームを別に設け、アクセントパネルで高級感を演出しました。

小笠原ならお客様のご要望やイメージをカタチにできます。浴槽や壁、床、バス空間内の細かいパーツまで、しっかりお打ち合わせをさせていただきカスタマイズします。数多くの企画施工を行ってきたからこそデザイン性にも自信があります。まずはご相談ください。

Details基本情報

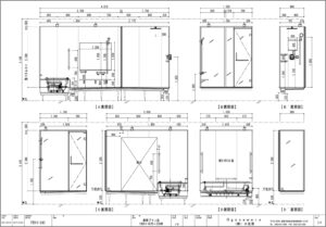
サイズ
1950㎜×4870㎜×高さ2300㎜
主な仕様
天井:化粧鋼板パネル
壁:化粧鋼板パネル/ダイノックシート貼り
床:300角タイル
ドア:テンパードア(ステンレス枠)
FIX:ステンレス枠
浴槽:FRA浴槽
水栓:サーモスタット付きバス・シャワー混合栓/サーモスタット付きバス・シャワー埋め込み混合栓/オーバーヘッドシャワー

Movie動画

その他の施工事例