Works【高級タイプ(戸建・マンション用)】フリーユニットバス1932・施工事例・癒される浴室空間

戸建て・マンションタイプ

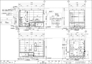
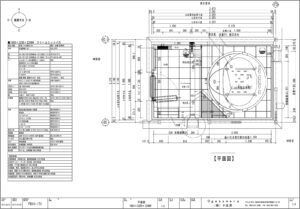
Outline概要

癒される浴室空間をテーマに、大型円形のジェット付き浴槽を用いて癒しの空間作りを目指しました。

小笠原ならお客様のご要望やイメージをカタチにできます。浴槽や壁、床、バス空間内の細かいパーツまで、しっかりお打ち合わせをさせていただきカスタマイズします。数多くの企画施工を行ってきたからこそデザイン性にも自信があります。まずはご相談ください。

Details基本情報

サイズ
1980㎜×3220㎜×高さ2200㎜
主な仕様
天井:化粧鋼板パネル
壁:600×300角タイル
床:300角タイル
ドア:テンパードア(ステンレス枠)
浴槽:FRA浴槽
水栓:埋め込み型湯水混合栓/

その他の施工事例