公式SNS
検索
ホテルタイプ
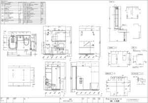
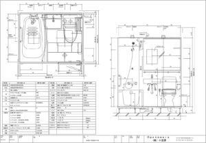
シャワー、洗面器、トイレが搭載されたホテルで採用いただいたユニットバスです。 小笠原であれば器具一つ一つがお客様にて選定が可能です。 些細な事でもご相談ください。
こちらの施工事例をシェアする
その他の施工事例
【ホテルタイプ】フリーユニットバス1617・施工事例・外国籍の方向け宿泊リゾート案件
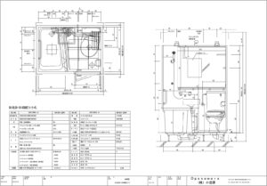
【ホテルタイプ】フリーユニットバス1530・ホテル内のハンディキャップ向けUB・施工事例
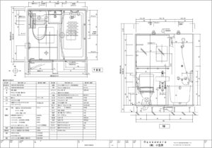
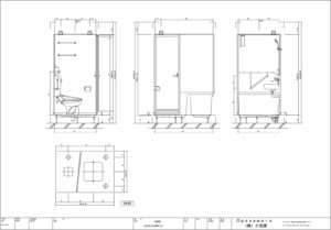
【ホテルタイプ】フリーユニットバス1218・施工事例・浴槽無し洗面トイレ付シャワーユニット
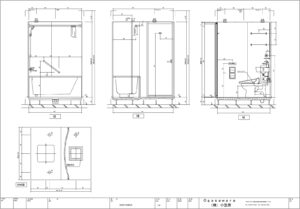
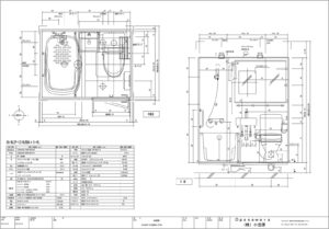
【ホテルタイプ】フリーユニットバス1316・ブロー浴槽・施工事例
【ホテルタイプ】フリーユニットバス1628・施工事例・on/off,your style
【ホテルタイプ】フリーユニットバス1416・施工事例・デザイン性重視
【ホテルタイプ】フリーユニットバス1616
【ホテルタイプ】フリーユニットバス2123・施工事例・ハンディキャップらしくないハンディキャップルーム
【ホテルタイプ】フリーユニットバス1923・施工事例・洗面 トイレ 浴槽の3点配置
【ホテルタイプ】フリーユニットバス2431・施工事例・檜の浴槽
【ホテルタイプ】フリーユニットバス1416・施工事例・限られたスペースで重厚感を実現
【ホテルタイプ】フリーユニットバス1418・施工事例・近代的な浴室
【ホテルタイプ】フリーユニットバス2527・洋風な浴室・施工事例
【オリジナル(規格サイズ)】ホテルタイプ3点式シャワーユニット
【ホテルタイプ】フリーユニットバス1628・施工事例・黒色でスタイリッシュな浴室
【ホテルタイプ】フリーユニットバス1925・施工事例・on/off,your style
【ホテルタイプ】フリーユニットバス1616・施工事例・限られたスペースで重厚感を実現
【ホテルタイプ】フリーユニットバス1920・施工事例・高級感があるユニットバス
【ホテルタイプ】フリーユニットバス2649・施工事例・都心の貸切風呂
【ホテルタイプ】フリーユニットバス1624・施工事例・コスト軽減
【ホテルタイプ】フリーユニットバス2525・高級感がある浴室・施工事例
【ホテルタイプ】フリーユニットバス1418・施工事例・一般部屋と差別化
【ホテルタイプ】フリーユニットバス2440・施工事例・スイートルーム
【ホテルタイプ】フリーユニットバス1550・施工事例・モダンな浴室空間
【ホテルタイプ】フリーユニットバス1317・施工事例・スタイリッシュ・コストを抑えて高級感を演出
【ホテルタイプ】フリーユニットバス2434・施工事例・スイートルーム