Works【ホテルシャワータイプ】フリーユニットバス0918・施工事例・高級感があるシャワーユニット

ホテル・シャワータイプ

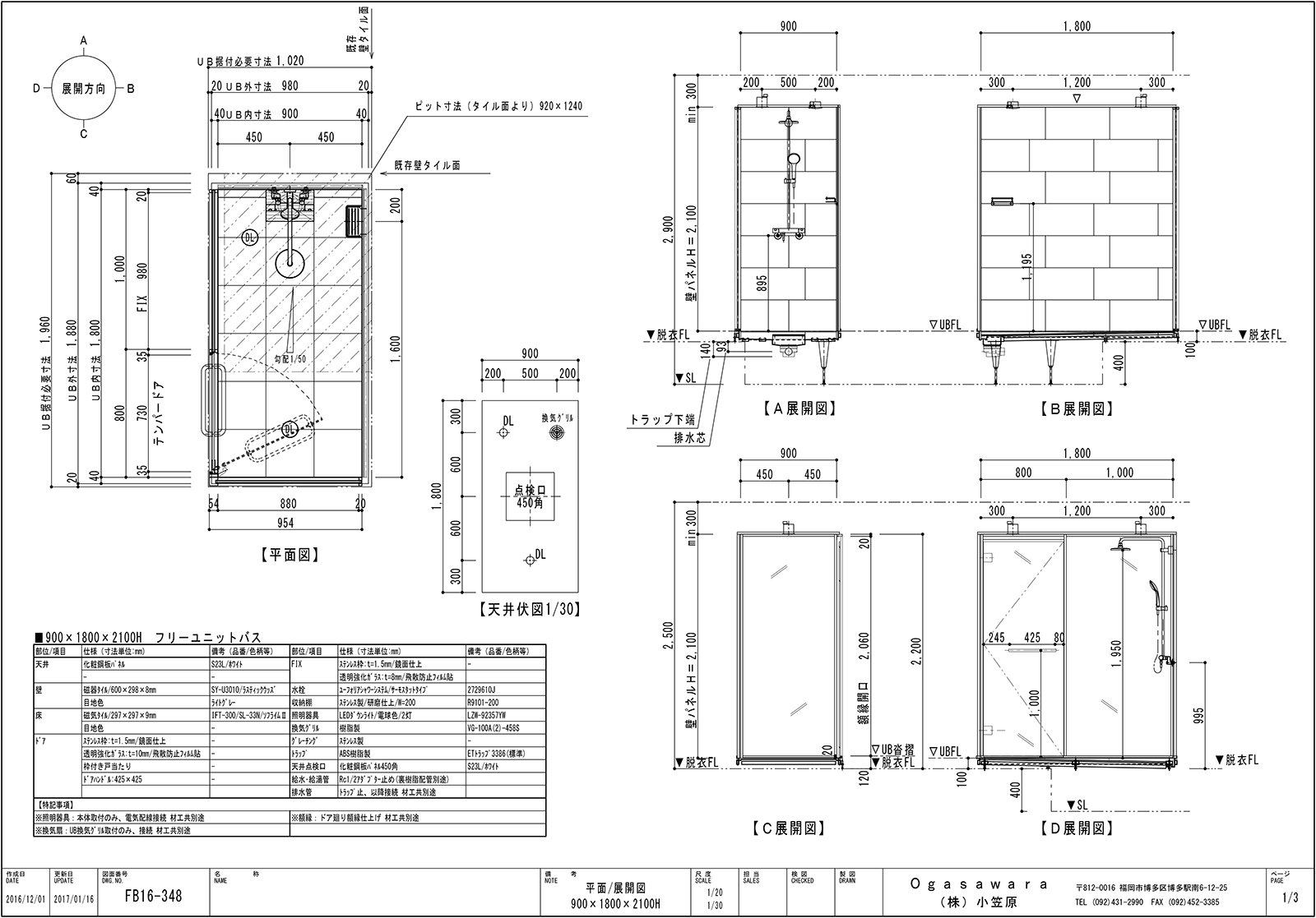
Outline概要

スケルトンなシャワーユニットが欲しいというご要望でした。

客室から見える二方向をガラスにして開放感を持たせました。

小笠原ならお客様のご要望やイメージをカタチにできます。浴槽や壁、床、バス空間内の細かいパーツまで、しっかりお打ち合わせをさせていただきカスタマイズします。数多くの企画施工を行ってきたからこそデザイン性にも自信があります。まずはご相談ください。

Details基本情報

サイズ
900㎜×1800㎜×高さ2100㎜
主な仕様
天井:化粧鋼板パネル
壁:600×298角タイル
床:297角タイル
ドア:テンパードア(ステンレス枠)
FIX:ステンレス枠
水栓:サーモスタット付きシャワー水栓/オーバーヘッドシャワー

その他の施工事例