Works【ホテルシャワータイプ】フリーユニットバス0916・施工事例・SUS枠を見せないスマートデザイン

ホテル・シャワータイプ

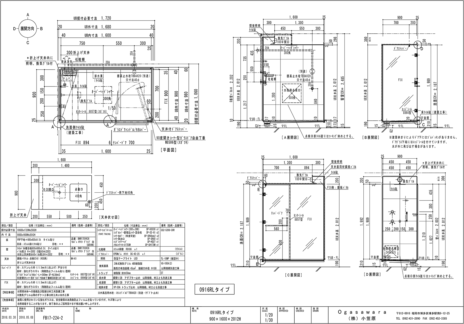
Outline概要

SUS枠を見せないスマートなデザインをご希望されました。L型のドアを提案させていただきました。

小笠原ならお客様のご要望やイメージをカタチにできます。浴槽や壁、床、バス空間内の細かいパーツまで、しっかりお打ち合わせをさせていただきカスタマイズします。数多くの企画施工を行ってきたからこそデザイン性にも自信があります。まずはご相談ください。

Details基本情報

サイズ
900㎜× 1600㎜× 高さ2020㎜
主な仕様
天井:化粧鋼板パネル
壁:600角タイル
床:600角タイ
ドア:テンパードア(ステンレス枠)
FIX:テンパードア
水栓:壁埋め込みシャワー混合栓/オーバーヘッドシャワー

その他の施工事例