Works【ホテルタイプ】フリーユニットバス1923・施工事例・洗面 トイレ 浴槽の3点配置

ホテルタイプ

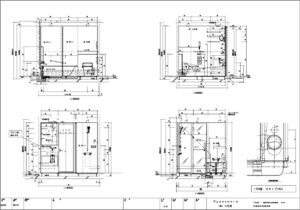
Outline概要

既存ユニットバスの入れ替えのご依頼でした。

「既存の間仕切り内に納まる最大のサイズで、設置高も最小に抑えたい。」というご要望をいただきました。他メーカーでは対応の難しい、洗面、トイレ、浴槽の3点配置でご要望に対応させていただき、仕様については海側、山側で色分けまでいたしました。

小笠原ならお客様のご要望やイメージをカタチにできます。浴槽や壁、床、バス空間内の細かいパーツまで、しっかりお打ち合わせをさせていただきカスタマイズします。数多くの企画施工を行ってきたからこそデザイン性にも自信があります。まずはご相談ください。

Details基本情報

サイズ
1900㎜×2300㎜×高さ2050㎜
主な仕様
天井:化粧鋼板パネル
壁:化粧鋼板パネル
床:400角タイル
ドア:化粧板フラッシュドア(アルミ枠)
内部ドア:テンパードア(ステンレス枠)
内部FIX:ステンレス枠
浴槽:ホーロー浴槽
水栓:サーモスタット付きシャワー混合栓/サーモスタット付きバスシャワー混合栓/シングルレバー洗面混合栓
便器:タンクレス便器

Movie動画

その他の施工事例