大型・超大型タイプ
介護浴室タイプ
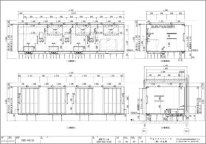
木造建造物のため軽量化と、1日の入浴回数が多い使用方法に対応できる浴室空間をご希望。軽量化と使用回数をテーマにユニットバスを提案させていただきました。
小笠原ならお客様のご要望やイメージをカタチにできます。浴槽や壁、床、バス空間内の細かいパーツまで、しっかりお打ち合わせをさせていただきカスタマイズします。数多くの企画施工を行ってきたからこそデザイン性にも自信があります。まずはご相談ください。
その他の施工事例

