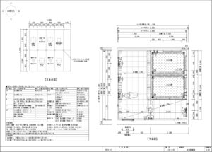
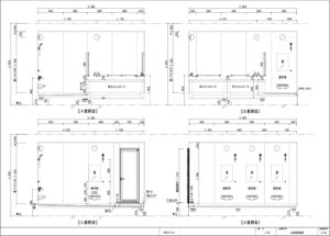
大型・超大型タイプ
空き倉庫を浴室へ用途変更した改修工事(リノベーション)の施工事例。
浴室の入り口は既存開口部を利用し、出来る限り浴室を広くした大型浴槽をご希望。大型浴槽の希望により搬入経路に制限がある中、SUS浴槽を2台並べる提案をさせていただきました。既存開口に合わせたドアの仕様や、解体範囲を必要最小限にする工夫もしました。
小笠原ならお客様のご要望やイメージをカタチにできます。浴槽や壁、床、バス空間内の細かいパーツまで、しっかりお打ち合わせをさせていただきカスタマイズします。数多くの企画施工を行ってきたからこそデザイン性にも自信があります。まずはご相談ください。
その他の施工事例

