ホテルタイプ
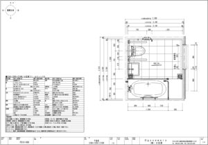
介護浴室タイプ
ハンディキャップらしくないハンディキャップルームをご希望されました。
SUS製器具やダイノックシートを使用して、いかにもなイメージのホワイトの部材を極力減らしました。
小笠原ならお客様のご要望やイメージをカタチにできます。浴槽や壁、床、バス空間内の細かいパーツまで、しっかりお打ち合わせをさせていただきカスタマイズします。数多くの企画施工を行ってきたからこそデザイン性にも自信があります。まずはご相談ください。
その他の施工事例

