Works【介護浴室タイプ】フリーユニットバス3135・病院内浴室・施工事例

介護浴室タイプ

Outline概要

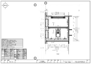
病院新築工事案件です。
職員が使い慣れている既設の在来浴室と使い勝手を合わせたいとの要望があり、ユニットバスにて再現しました。

浴槽またぎ高さ、手すり位置などをほぼ完全に再現。
使い勝手が変わらないので希望通りであると評価いただきました。
両開き折戸によって浴室出入りの導線を改善しました。

小笠原ならお客様のご要望やイメージをカタチにできます。浴槽や壁、床、バス空間内の細かいパーツまで、しっかりお打ち合わせをさせていただきカスタマイズします。数多くの企画施工を行ってきたからこそデザイン性にも自信があります。まずはご相談ください。

Details基本情報

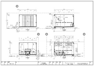
サイズ
3100㎜× 3500㎜× 高さ2200㎜
主な仕様
天井:化粧鋼板パネル
壁:化粧鋼板パネル
床:シート貼り
ドア:8枚折戸
浴槽:ポリエステル系人工大理石浴槽
水栓:デッキ水栓/デッキシャワー水栓

Movie動画

その他の施工事例