大型・超大型タイプ
介護浴室タイプ
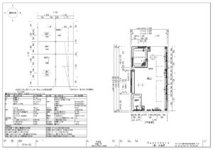
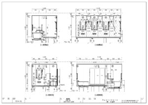
障碍者向けの施設で複数の方が同時に使用できる大浴室を男用、女用の2か所をユニットバスで対応したいとご要望頂きました。
また、木造の建築物なので漏水等のリスクを軽減したいとご希望でした。
ユニットバスにすることで、漏水のリスクを軽減するとともに万が一の漏水事故の際のメンテナンス性が向上し、仕上げ材を鋼板パネル床シートで目地の少ない仕様にすることでお掃除の手間を軽減できる提案を行いました。
洗い場と洗い場の間に窓を設置されたいという要望があり、器具位置、パネル割にもこだわったレイアウトを設計・建築会社様と打ち合わせを行いユニットバスの設計・施工を行いました。
設計事務所からは以前にも施設のフリーユニットバスの実績あり、その実績より当現場のご相談をいただきました。
今後も設計会社、建築会社、使用される施設の方のご要望を形にしていきたく考えております。
小笠原ならお客様のご要望やイメージをカタチにできます。浴槽や壁、床、バス空間内の細かいパーツまで、しっかりお打ち合わせをさせていただきカスタマイズします。数多くの企画施工を行ってきたからこそデザイン性にも自信があります。まずはご相談ください。
その他の施工事例

