Works【超大型・大型タイプ】フリーユニットバス4353・社員寮浴室・施工事例

大型・超大型タイプ

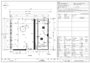
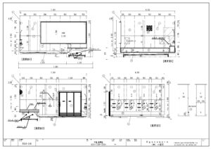
Outline概要

既設在来浴室の老朽化による漏水の為、リニューアルした案件です。

メンテナンス性の高さからユニットバス化をご提案しました。
大型のステンレス浴槽や柱型などをユニットバスで実現できるのはフリーユニットならではです。

小笠原ならお客様のご要望やイメージをカタチにできます。浴槽や壁、床、バス空間内の細かいパーツまで、しっかりお打ち合わせをさせていただきカスタマイズします。数多くの企画施工を行ってきたからこそデザイン性にも自信があります。まずはご相談ください。

Details基本情報

サイズ
4300㎜×5300㎜×高さ2400㎜
主な仕様
天井:化粧鋼板パネル
壁:化粧鋼板パネル
床:シート貼り
ドア:3枚引き戸(アルミ枠)
浴槽:ステンレス浴槽
水栓:セルフストップサーモスタット付きシャワー水栓/2ハンドルバス水栓/掃除用水栓

Movie動画

その他の施工事例