大型・超大型タイプ
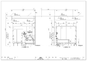
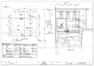
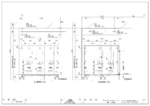
ステンレス製浴槽を設置したいとご希望頂きました。
上階に設置するにあたり、建物への荷重を考慮して設計・施工しました。
小笠原ならお客様のご要望やイメージをカタチにできます。浴槽や壁、床、バス空間内の細かいパーツまで、しっかりお打ち合わせをさせていただきカスタマイズします。数多くの企画施工を行ってきたからこそデザイン性にも自信があります。まずはご相談ください。
その他の施工事例


