Works【機械浴室タイプ】酒井医療(株)ロベリアプラス2933・機械浴室・施工事例

機械浴室タイプ

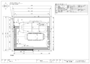
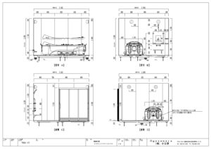
Outline概要

バリアフリー仕様と天井高についてご要望を頂きました。
機械浴槽が使用しやすい浴室をご提案いたしました。

小笠原ならお客様のご要望やイメージをカタチにできます。浴槽や壁、床、バス空間内の細かいパーツまで、しっかりお打ち合わせをさせていただきカスタマイズします。数多くの企画施工を行ってきたからこそデザイン性にも自信があります。まずはご相談ください。

Details基本情報

サイズ
2950㎜×3300㎜× 高さ2200㎜
主な仕様
天井:化粧鋼板パネル
壁:化粧鋼板パネル
床:シート貼り
ドア:3枚引き戸(アルミ枠)
水栓:サーモスタット付きシャワー水栓
浴槽:機械浴槽(酒井医療株式会社・ロベリアプラス)

Movie動画

その他の施工事例