Works【超大型・大型タイプ】フリーユニットバス4962・多人数で使用・大小2台の浴槽・施工事例

大型・超大型タイプ

Outline概要

社員の作業後のに汗を流す浴室として、浴槽は4~8人が使用できる大きさをご希望されました。また、水風呂も必要との事で大小2台の浴槽のご要望を頂きました。
既存浴室がかなり古くなっていたこともあり、在来浴室は老朽化が早く水漏れなどのメンテナンス性も悪い為ユニットバスにすることを提案しました。
小笠原ならお客様のご要望やイメージをカタチにできます。浴槽や壁、床、バス空間内の細かいパーツまで、しっかりお打ち合わせをさせていただきカスタマイズします。数多くの企画施工を行ってきたからこそデザイン性にも自信があります。まずはご相談ください。

Details基本情報

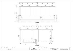
サイズ
4900㎜×6200㎜×高さ2200㎜
主な仕様
天井:化粧鋼板パネル
壁:化粧鋼板パネル
床:297角タイル
ドア:開き戸(アルミ枠)
浴槽:FRP浴槽
水栓:サーモスタット付きシャワーバス水栓/大口径2ハンドルバス水栓/シングル水栓

Movie動画

その他の施工事例