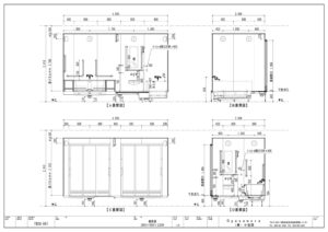
介護浴室タイプ
機械浴室タイプ
お客様から機械浴槽(ブランバス)の選定と個浴室を連結して使用したいとご要望頂きプランニングしました。
間仕切りをカーテンにすることで、広く使用したい際はカーテンを開けて、個の空間として使用したい場合は閉めて使用できるようにしました。
小笠原ならお客様のご要望やイメージをカタチにできます。浴槽や壁、床、バス空間内の細かいパーツまで、しっかりお打ち合わせをさせていただきカスタマイズします。数多くの企画施工を行ってきたからこそデザイン性にも自信があります。まずはご相談ください。
その他の施工事例

