Works【高級タイプ】フリーユニットバス1618・ビューウィンドの有る浴室・施工事例

戸建て・マンションタイプ

Outline概要

洗面所と一体化したホテルのような広々とした浴室をご希望されました。

マンション改修に伴い、住宅の中心部にいちしていた窓のない浴室を、居室のあった窓際へ移動。
広さと最高を確保しました。
11階で眺めのよい場所の為、既存サッシの手前に開口を設け、眺望を楽しみながら入浴できる仕様にしました。

小笠原ならお客様のご要望やイメージをカタチにできます。浴槽や壁、床、バス空間内の細かいパーツまで、しっかりお打ち合わせをさせていただきカスタマイズします。数多くの企画施工を行ってきたからこそデザイン性にも自信があります。まずはご相談ください。

Details基本情報

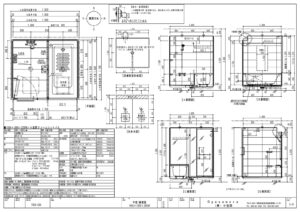
サイズ
1600㎜×1800㎜×高さ2050㎜
主な仕様
天井:化粧鋼板パネル
壁:298×600角タイル
床:298×600角タイル
ドア:テンパードア(ステンレス枠)
FIX:ステンレス枠
水栓:サーモスタット付きバスシャワー混合栓/オーバーヘッドシャワー
浴槽:アクリル浴槽

その他の施工事例