介護浴室タイプ
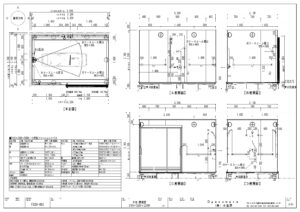
病院の改修工事案件です。もともと病室だったエリアに浴室を設置したいとご要望頂きました。
ユニットバスのFLが高くならないように排水計画。ストレッチャーの動線をしっかりと検証してご提案しました。
小笠原ならお客様のご要望やイメージをカタチにできます。浴槽や壁、床、バス空間内の細かいパーツまで、しっかりお打ち合わせをさせていただきカスタマイズします。数多くの企画施工を行ってきたからこそデザイン性にも自信があります。まずはご相談ください。
その他の施工事例
