大型・超大型タイプ
介護浴室タイプ
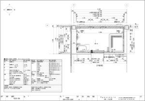
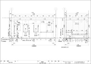
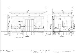
新築工事案件です。計画当初は在来での計画でしたが工期を考えユニットバスとなりました。大きな浴室に「大型の浴槽」と「個浴」を備えた介護施設向けのユニットバス。ご利用者様に認識し易いように手すりをイエローにしています。
小笠原ならお客様のご要望やイメージをカタチにできます。浴槽や壁、床、バス空間内の細かいパーツまで、しっかりお打ち合わせをさせていただきカスタマイズします。数多くの企画施工を行ってきたからこそデザイン性にも自信があります。まずはご相談ください。
その他の施工事例


