大型・超大型タイプ
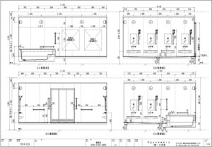
修行僧が1度に10名入浴できる大型浴室をご希望されました。
広々としたスペースや脱衣場スペースにこだわりました。また、壁は石目調鋼板パネル、床はタイル仕上げ、デザイン性も兼ね備えております。
小笠原ならお客様のご要望やイメージをカタチにできます。浴槽や壁、床、バス空間内の細かいパーツまで、しっかりお打ち合わせをさせていただきカスタマイズします。数多くの企画施工を行ってきたからこそデザイン性にも自信があります。まずはご相談ください。
その他の施工事例

