大型・超大型タイプ
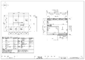
改修工事案件です。梁下への設置とFL高さ問題があり縦引きトラップを使用しました。
限られたスペースに洗い場と浴室をプランいたしました。
小笠原ならお客様のご要望やイメージをカタチにできます。浴槽や壁、床、バス空間内の細かいパーツまで、しっかりお打ち合わせをさせていただきカスタマイズします。数多くの企画施工を行ってきたからこそデザイン性にも自信があります。まずはご相談ください。
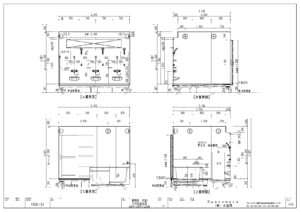
その他の施工事例

