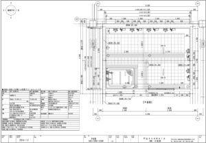
大型・超大型タイプ
工場の大型浴室の施工事例です。
建物の形状に合わせた片流れの浴室天井。計画当初は在来での計画でしたが「工期」を考えユニットバスとなりました。
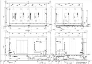
ユニットバス化することで広々とした浴室空間になり、出来栄えにも施主、建築よりお褒めの言葉を頂きました。
小笠原ならお客様のご要望やイメージをカタチにできます。浴槽や壁、床、バス空間内の細かいパーツまで、しっかりお打ち合わせをさせていただきカスタマイズします。数多くの企画施工を行ってきたからこそデザイン性にも自信があります。まずはご相談ください。
その他の施工事例

